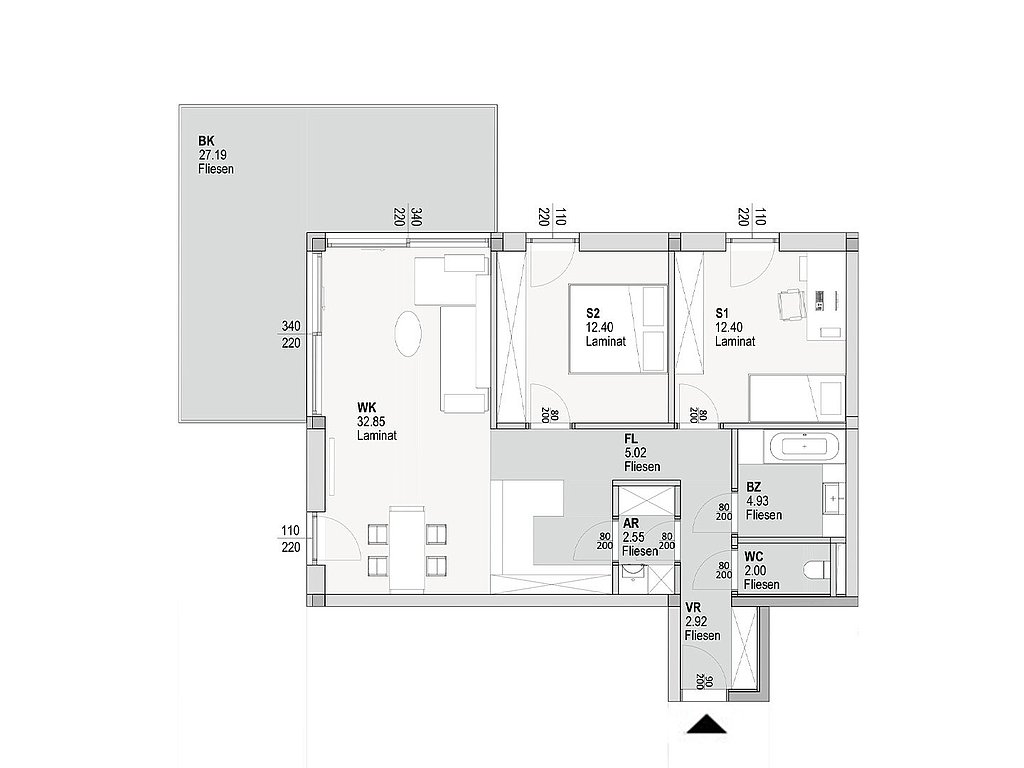
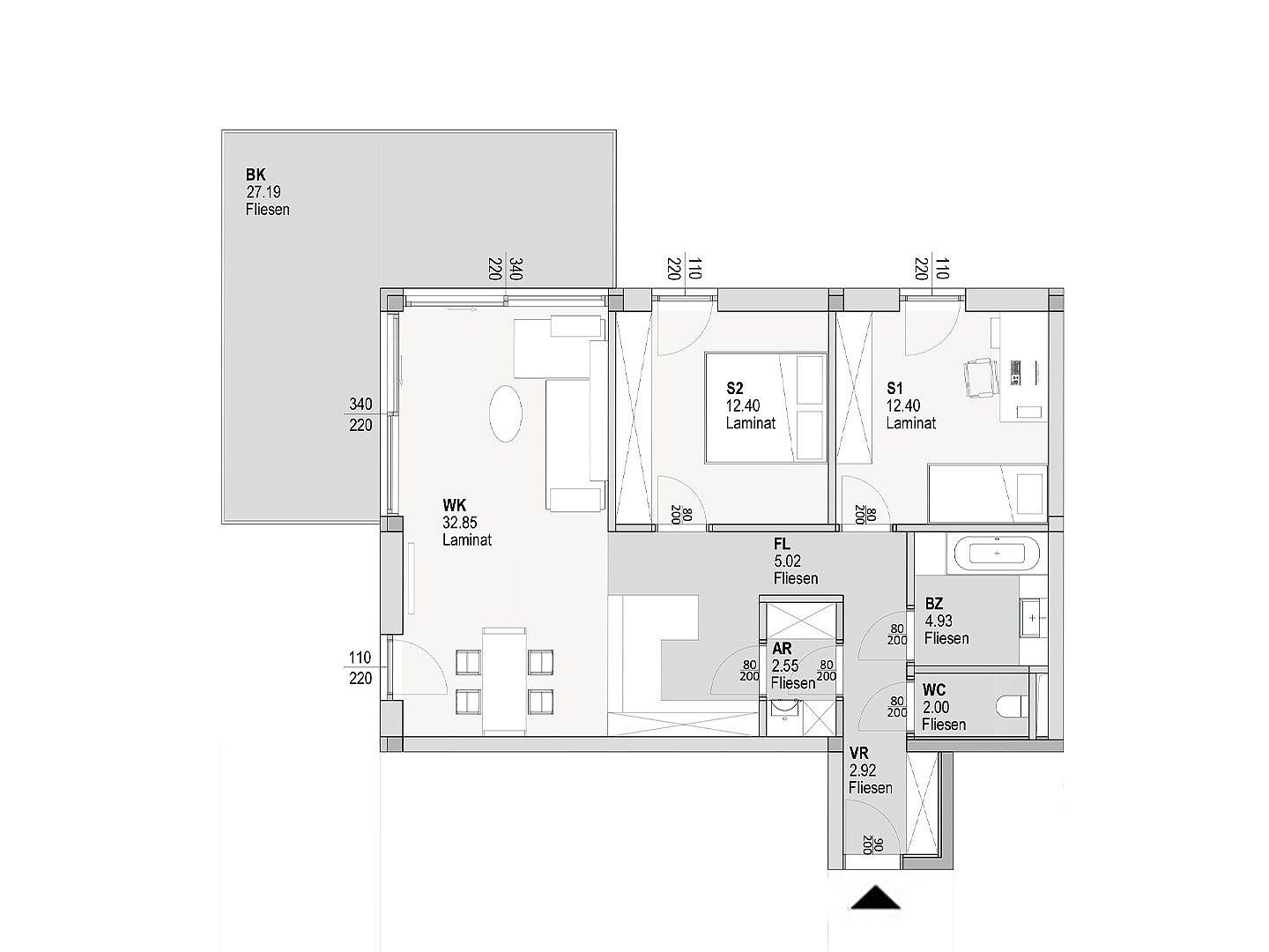
Steyr-Ennsleite TOP 07 (1.OG)

zur Filterung

Eigentumswohnung mit großzügigem Balkon

In Ennsleite, dem verkehrsruhigen und erhöhten Stadtteil von Steyr, entsteht eine Wohnanlage mit 18 Eigentumswohnungen. Diese punkten mit Wohnflächen von 35 bis 75 m², großzügigen Terrassen, Eigengärten sowie sechs exklusiven, privaten Dachgärten.

Das nahezu ebene, ideal nach Süd-Ost-West ausgerichtete Grundstück der Wohnungsanlage in der Kammermayrstraße ermöglicht helle und sonnige Wohnräume und Außenflächen der Eigentumswohnungen. Die Wohnhausanlage wird durch einen stufenlosen Zugangsweg von der südseitig gelegenen Kammermayrstraße bis zum ebenerdigen Hauszugang erschlossen. Ein moderner Personenaufzug ermöglicht den weiteren barrierefreien Zugang zu allen Wohnungen und den Dachgärten.

Wohnung TOP 07 im Überblick

  • Eigentumswohnung im ersten Obergeschoss
  • Wohnnutzfläche: 75 m²
  • Balkon: 27,19 m² 
  • Kellerabteil: 5,02 m²
  • VK-Preis brutto: € 347.010,- zzgl. Nebenkosten
  • 1 Tiefgaragenplatz pro Wohnung ist verpflichtend zu erwerben.
    VK-Preis: € 19.490,-

Sechs exklusive, private Dachgärten!

Als absolute Besonderheit werden auf der Dachterrassenebene sechs exklusive, private Dachgärten errichtet, welche zu einem lukrativen Kaufpreis erworben werden können. Die mit dem Personenaufzug erreichbaren Dachgärten werden von einem Gartenbauspezialisten geplant und errichtet: Pflanzgefäße, Sichtschutzelemente und eine bunte Pflanzenwelt aus Stauden, Sträuchern, Bäumen und Gräsern schaffen eine ganz persönliche und luxuriöse Oase hoch über dem städtischen Leben.

Jeder Privatgarten ist ausschließlich über das zentrale Stiegenhaus, barrierefrei mit dem Lift und über eine absperrbare Zugangstüre durch die jeweiligen Eigentümer betretbar. Dadurch entstehen mit der durchdachten Planung unterschiedlich nutzbare Freiräume und bieten ausreichenden Platz für hochwertige Ausstattungsobjekte.

Preise Dachgärten

Dachgarten Fläche VK-Preis
DG A 74,20 m² € 39.500,-
DG B 48,44 m² € 27.700,-
DG C 74,20 m² € 39.500,-
DG D 74,20 m² € 39.500,-
DG E 48,44 m² € 27.700,-
DG F 74,20 m² € 39.500,-

Top-Ausstattung & Top-Leistung

  • HWB 34,4 Niedrigstenergiebauweise
  • Wände: Massivbauweise mit 38 cm W.i Planblockziegel, Stahlbeton, Wohnungstrennwände: 25 cm Schallschutzziegel, Zwischenwände: 12 cm starken Hochlochziegeln
  • Flachdach 
  • Bodenbeläge: Hochwertige Laminatböden, Feinsteinzeugfliesen ca. 60 x 30 cm
  • Fernwärme Steyr und Fußbodenheizung
  • Marken-Kunststoff-Alu-Fenster mit Drei-Scheiben-Isolierverglasung; Terrassentüre als Hebeschiebetür
    und Rollläden in allen Wohn- und Schlafräumen
  • Personenaufzug für 8 Personen 
  • 6 exklusive, private Dachgärten
  • Zäune und Sockelmauer inkludiert
  • Baustart: Frühjahr 2026

Ausstattung kann gegen Aufpreis nach individuellen Wünschen geändert werden.

 

Raumaufteilung Steyr-Ennsleite TOP 07 (1.OG)

Grundrisse

Fläche 75 m²
Ihr Ziegelmassivhaus

Termin vereinbaren

Kurt Schlattinger

Alle Angaben ohne Gewähr. Druckfehler und Preisänderungen vorbehalten.

Haus-Anfrage

Jetzt anfragen

Anrede *
PLZ * / Ort *
Newsletter *

Mit * markierte Felder sind Pflichtfelder!