Regau TOP C12 (OG)

belagsfertig ab € 315.400,-
schlüsselfertig ab € 336.500,-

provisionsfrei

zur Filterung

WOHNEN ZWISCHEN ATTERSEE UND TRAUNSEE

Nur etwa 2,3 Kilometer vom Zentrum der Gemeinde Regau entfernt, entstehen am östlichen Ortsrand drei Wohnhäuser mit je vier Wohnungen.

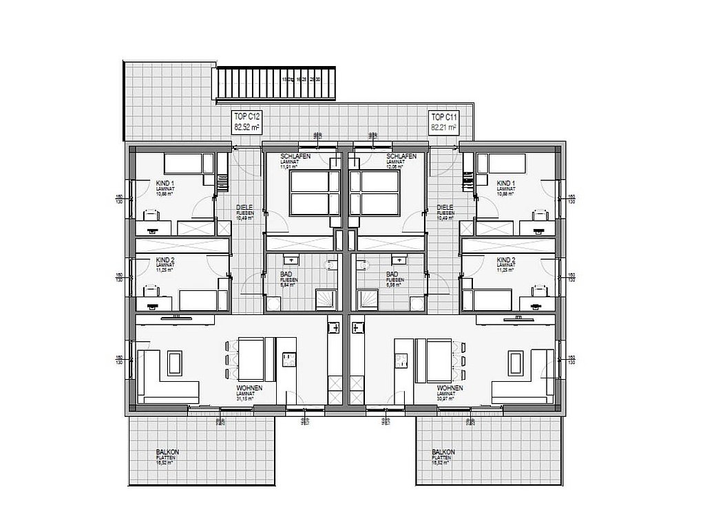
In der attraktiven Wohngegend am Höllmannweg werden zwölf nicht unterkellerte Eigentumswohnungen in Ziegelmassivbauweise gebaut. Die Wohnungen werden auf zwei Ebenen mit Nutzflächen von circa 69 bis 82 m² in belags- oder schlüsselfertiger Bauweise errichtet.

In fünf Minuten am Baggersee Regau, in 16 Minuten am Attersee und in 18 Minuten am Traunsee: Die Lage des Projektes ist optimal.

Die Hausruckgemeinde Regau liegt am Ager-Fluss und bietet zudem wunderbare Wanderwege direkt vor der Tür. Von der Wohnanlage erreichen Sie die Bezirksstadt Vöcklabruck mit vielfältigen Bildungseinrichtungen, Shopping- und Sportmöglichkeiten in nur zehn Autominuten.

Besonders interessant für Pendlerinnen und Pendler: Der ÖBB-Knotenpunkt Attnang-Puchheim liegt nur 2,3 Kilometer entfernt, auf der A1-Westautobahn ist man in nur sieben Minuten.

Eine Wohnung ein Leben lang

Die größten Wohnungen der drei Häuser finden Sie in Haus C. Auf 82 m² Wohnfläche hat unser hauseigenes Planungsteam optimale Wohnungen für Familien entworfen. Alle vier Eigentumswohnungen punkten mit einem großen und offenen Wohn-Ess-Bereich mit Küche, einem Schlafzimmer, zwei große Kinderzimmer und einem Badezimmer.

Gemütliche Sommerabende lassen sich auf den überdachten Terrassen der Erdgeschoß-Wohnungen erleben, die dazugehörigen Eigengärten vergrößern zusätzlich den Lebensraum und bieten Platz für Hobby und Freizeitvergnügen aller Art. Die großzügigen Balkone (5,90 x 2,80 m) im Obergeschoß erweitern den Wohnraum nach außen hin.

Alle drei Häuser verfügen über einen von außen zugänglichen, versperrbaren Raum zum Abstellen von Kinderwägen, Fahrrädern etc.

TOP-AUSSTATTUNG

  • Wände: Massivbauweise mit 25 cm und 20 cm Vollwärmeschutz mit 2 mm Silikonharzputz, Stahlbeton, Wohnungstrennwände: 25 cm Schallschutzziegel, Zwischenwände: 12 cm starke Hochlochziegel
  • Walmdach 
  • Bodenbeläge: Hochwertige Laminatböden, Feinsteinzeugfliesen ca. 60 x 30 cm
  • Zentrale Luft-Wasser-Wärmepumpe je Gebäude, Verteilung über Fußbodenheizung mit Wärmemengenzählern
  • WINDOWMENT®-Kunststofffenster mit Dreifach-Isolierverglasung sowie elektrischen Rollläden in allen Räumen; Balkon-/Terrassentüre als Hebeschiebetür 
  • uvm.
  • Baustart: Sommer 2024

 

Raumaufteilung Regau TOP C12 (OG)

Grundrisse

Fläche 82,21 m²
Ihr Ziegelmassivhaus

Termin vereinbaren

Kurt Schlattinger

Exposé downloaden

Haus-Anfrage

Jetzt anfragen

Anrede *
PLZ * / Ort *
Newsletter *

Mit * markierte Felder sind Pflichtfelder!